- 产品细节
- 技术资料
- 安装洗眼器的常问答FAQ
- 安装视频
- 公司地址
- 文档(阅读/下载)
- 相关产品
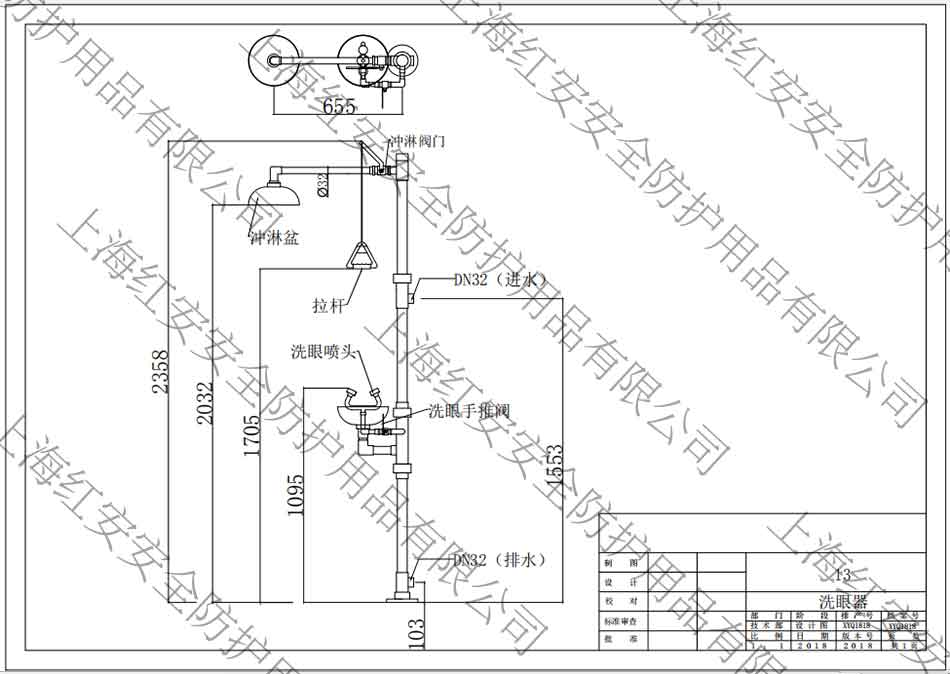
产品细节
ABS复合式洗眼器产品说明:
产品名称:ABS复合式洗眼器
产品货号:90906613
品牌:红安
产品材质:ABS工程塑料
料工作压力:0.2-0.4MPa
流量:淋浴喷头 120-180升/分钟
洗眼器喷头:12升/分钟
产品特点:冲眼喷头的柔和泡沫式水流,比普通洗眼喷头提高清洗效率。
技术资料
性能:强抗酸、碱、盐、油类等化学品物质腐蚀。
使用范围:适合核能、石油、化工、机械制造、汽车轮船修造、铸造、喷漆、印染医药、医疗等行业
可选配置:可加踏板,可加ABS涂层和照明装置,可加排空防冻装置,可根据客户要求定制。

3D解决方案洗眼器
安装洗眼器的常问答FAQ
安装紧急淋浴洗眼器的几个建议!
- 安装紧急淋浴洗眼器在靠近危险源/作业区域。
- 不要做隔断层处理
- 安装的地方必须可见和畅通的路上,建议:不要通过门口,越过机械,或其他障碍物才能使用到的地方。
- 安装在与危险源或作业区域同一层楼,建议:作业区域和应急设备之间没有楼梯较好。
- 尽可能安装紧急淋浴洗眼器在紧急出口,以便任何响应或方便紧急救护人员能快速到达
- 安装在…请联系洗眼器厂家了解更多!更多:安装洗眼器的常问答FAQ
安装视频
公司地址
地址:上海市松江区小昆山镇鼎源路工业园区
文档(阅读/下载)
相关产品


